Announcements
Midwood Library’s Children’s Area To Be Renovated Next Year
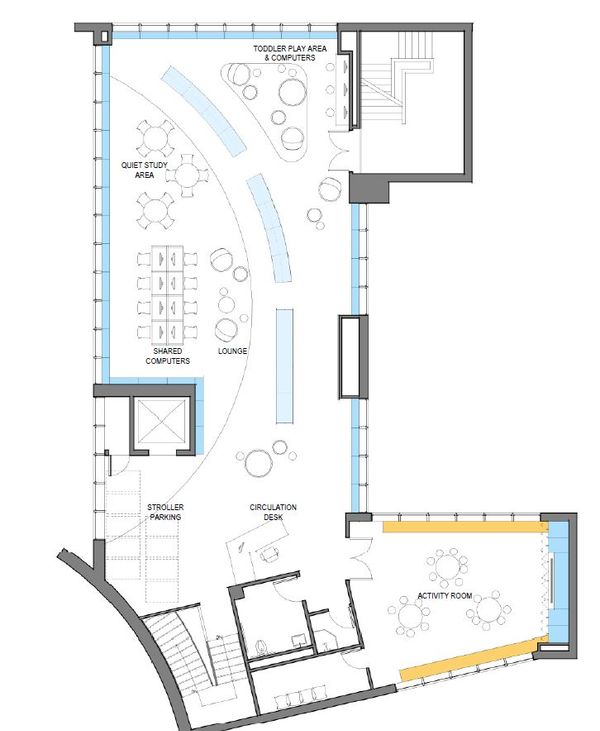
BPL Midwood branch during Ride the Branches event 2017 / BKLYNERMIDWOOD – Located on East 16th Street, just off Avenue J, Midwood Library serves thousands of children each week, and now, thanks to $3.5 million approved by Council Member Greenfield, it’s second-floor children’s area will undergo a full renovation.