A Look At Potential Commercial Space In The Future, Reconstructed Frost Building

Though construction has only just begun on the former Frost building at the corner of 5th Avenue and 19th Street, its future commercial space is already up for grabs.
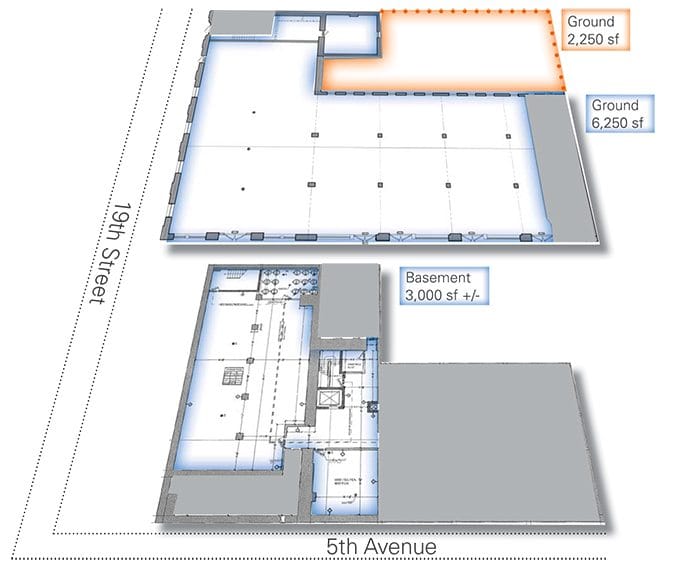
A listing at ABS Partners has the floor plan for the 8,500-square-foot space at 657 5th Avenue, which they describe as the “largest space available within Park Slope South’s submarket.” Much of the storefront will face 5th Avenue — 110 feet of it — while 65 feet will look out on 19th Street. No price is given for the rent, though it says the space should be available in 2015, which we’ve previously heard as when construction should be complete.

With a supermarket set to open just a couple blocks away, and another large space potentially opening up if the Eagle building sells (which is 7,500 square feet of retail space, for those keeping track of large space in our “submarket”), and the old Aaron’s space on the corner of 17th St still, it appears, for rent (5,000 square feet), we’ve got some interesting large retail spaces — but what can fill them? A chain drugstore, a bank? Another bar or venue?
What do you think we need, or could work on this end of 5th Ave?