657 5th Avenue
A Look At Potential Commercial Space In The Future, Reconstructed Frost Building
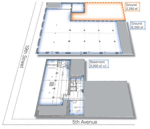
via ABS Partners [http://www.absre.com/largeimage.cfm?propertyid=317&image=/images/space/657FifthAve_Retail_plan.jpg&caption=Floor%20Plan:%20657%205th%20Avenue%2C%20Park%20Slope%20South,%20Ground] Though construction has only just begun [/blog/development-2/first-image-of-new-frost-building-appears-on-5th-avenue] on the former Frost building at the corner of 5th