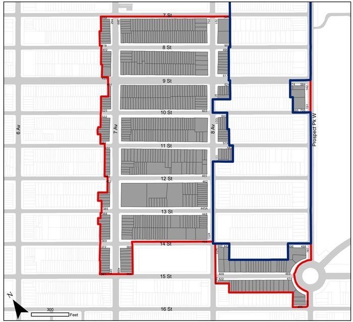
Good news from the Park Slope Civic Council. The signs for the recently expanded historic district are officially on the Department of Transportation’s schedule for sometime this spring. The new extension, approved in April 2012, “stretches from approximately Seventh Street to 15th Street, from Seventh to Eighth Avenues, and